|
|
Descriptions:
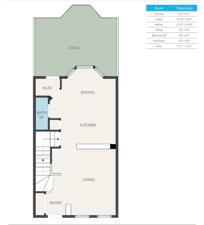
Located on a quiet street in the SE corner of McKenzie Towne, this home is a short walk from shopping, parks and the McKenzie Towne bus terminal. Main floor offers a bright, open layout with new LVP flooring throughout. The living room has large windows bringing in plenty of natural light, a gas fireplace with mantle and TV ledge. The kitchen includes full-height cabinetry, ample counter space, tile backsplash, and a raised eating bar overlooking the living room. Stainless steel dishwasher, OTR microwave and stove are newer. Adjacent dining nook is positioned in a bay window setting with backyard views.
Convenient main floor 2-piece bath plus a functional rear mudroom with built-in storage provides access to the deck and yard. The yard is large with raised garden bed ready for your green thumb. Plenty of space beyond the yard for a future double garage.
The second floor configuration offers options for a young couple or roommates. The front primary bedroom includes a walk-in closet and 4-piece ensuite. Rear bedroom is slightly smaller and also has a full ensuite and walkin closet. Unfinished basement offers excellent potential for future development, with a wide open layout ready to be customized to your needs. Currently set up with a dedicated workshop area complete with (negotiable) workbench and storage, plus plenty of additional space for recreation, home gym, or added bedrooms. Mechanical and laundry areas are neatly organized and easily accessible, with rough-in plumbing already in place for a future bathroom.
|
|
| Status: |
|
Active
|
|
| Includes: |
|
window blinds |
|
|
|
|
|
| Site Influences: |
| Back Lane, Back Yard, Garden, Rectangular Lot |
|
| Legal Description: |
| ACCESS Legal Description |
|
| Location & Listing Info: |
|
|
| Neighbourhood: |
McKenzie Towne
|
|
| Lot Size: |
0.06
sq.ft.
|
| Lot Shape: |
Back Lane,Back Yard,Garden,Rectangular Lot |
|
|
|
|
|
| Property Info: |
|
| Property Type: |
Semi Detached (Half Duplex) |
| Home Style: |
2 Storey,Attached-Side by Side |
| Year Built: |
2010 |
| Total Floor Area: |
1,136 sq. ft. |
| Brokerage: |
RE/MAX Complete Realty |
| End Unit: |
1 Common Wall
|
| Construction Type: |
Vinyl Siding,Wood Frame
|
| Front Exposure: |
SE
|
|
|
|
|
|
| Exterior: |
|
| Exterior: |
Vinyl Siding, Wood Frame |
| Construction: |
Vinyl Siding,Wood Frame |
| Frontage: |
6.69M 21`11" |
| Front Exposure: |
SE |
| Roof: |
Asphalt Shingle |
|
|
|
|
|
|
|
|
|
|
| Rooms: |
|
| Total Bedrooms: |
2
(Bedrooms Above: 2)
|
| Bathrooms: |
Full: 2
/ Half: 1
|
| Rooms Above: |
4 |
| Ensuite: |
Yes
|
| Parking Plan Type: |
Alley Access,Off Street
|
| Garage: |
0
|
|
|
|
|
|
| Additional Info: |
|
| Heating: |
Forced Air, Natural Gas |
| Basement: |
Full |
| Basement Type: |
Full |
| Floor Finish: |
Carpet, Vinyl Plank |
| Fireplace Details: |
For Sale |
| Parking: |
Alley Access, Off Street |
| Total Parking: |
2
|
| Restrictions: |
Contact for Restrictions |
| Heating Type: |
Forced Air,Natural Gas
|
| Heating Fuel: |
Forced Air,Natural Gas
|
| # of Finished Fireplaces: |
1
|
| Restrictions: |
None Known
|
|
|
|
|
|
|
|
|
|
|
|
|
|
|
|
 |
Contact Peter Appleby -
#10, 6020 1A Street SW, Calgary, Alberta, T2H 0G3
|
|
|
|
|
|
|
|
|
|
The data included in this display is deemed to be reliable, but is not guaranteed to be accurate by the Calgary Real Estate Board.
|
|
|
|
|
The data included on this website is deemed to be reliable, but is not guaranteed to be accurate by the Calgary Real Estate Board.
MLS®, Multiple Listing Service®, and the associated logos are all registered certification marks owned by CREA and are used to identify real estate services provided by brokers and salespersons who are members of CREA. The trademarks REALTOR®, REALTORS® and the REALTOR® logo are controlled by The Canadian Real Estate Association (CREA) and identify real estate professionals who are members of CREA. Used under license.
| |