|
|
Descriptions:
(OPEN HOUSE SAT Dec 27 & SUN Dec 28 2:00 TO 4:00 PM) Welcome to life in McKenzie Lake, where year-round activities, community spirit, and everyday convenience come together for families who want room to grow. This well-loved, beautifully maintained home—proudly owned by the original owners— is perfectly positioned just a short walk to schools, the lake, parks, and Bow River pathways, making it easy for families to play, explore, and build lifelong memories.
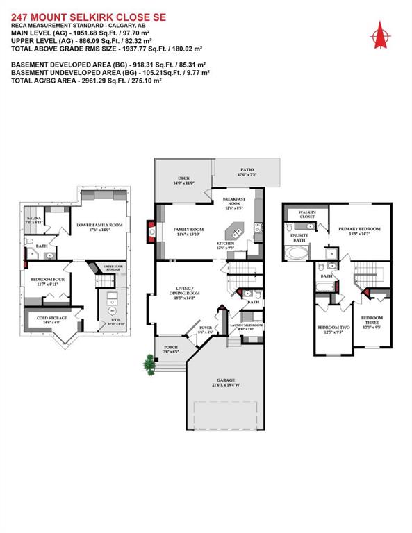
Inside, the home offers 4 bedrooms and 3.5 bathrooms, thoughtfully designed with families in mind. The primary retreat comfortably fits a king-size bed, features a large walk-in closet, and a private ensuite—your own peaceful escape at the end of the day. The additional bedrooms are generously sized to fit queen beds, allowing kids the space they need to grow comfortably over the years.
The sun-filled living and dining room are ideal for entertaining. The heart of the home is the gourmet kitchen, complete with granite countertops, abundant cabinetry, a corner pantry, and a cozy nook with bistro bar—perfect for family breakfasts and homework time. The adjoining family room with a gas fireplace invites relaxed evenings together. A functional mudroom with custom cabinetry and main-floor washer/dryer keeps busy family life organized and clutter-free.
The fully finished basement —ideal for teens, guests, or multi-purpose family use. expands your living space with a 4th bedroom (egress window), a 3-piece bathroom, and a large family room. Imagine unwinding in the custom cedar sauna built with clear knot-free wood.
Add your double attached garage with work bench plus an irrigation system, this home has everything your family could want.
Outdoors, the large backyard is made for family playtime, summer barbecues, and entertaining on the deck. A mature apple tree provides natural privacy and delicious apples year after year. Completing the package is a double attached garage with excellent storage.
With easy access to Deerfoot Trail, Stoney Trail, shopping, and amenities, this home delivers the lifestyle families are searching for—space, warmth, community, and unbeatable access to McKenzie Lake living.
|
|
| Status: |
|
Active
|
|
| Includes: |
|
n/a |
|
|
|
|
|
| Site Influences: |
| Back Yard, Landscaped, Lawn, Rectangular Lot |
|
| Legal Description: |
| ACCESS Legal Description |
|
| Location & Listing Info: |
|
|
| Neighbourhood: |
McKenzie Lake
|
|
| Lot Size: |
0.12
sq.ft.
|
| Lot Shape: |
Back Yard,Landscaped,Lawn,Rectangular Lot |
|
|
|
|
|
| Property Info: |
|
| Property Type: |
Residential Detached Single Family |
| Home Style: |
2 Storey |
| Year Built: |
1997 |
| Total Floor Area: |
1,938 sq. ft. |
| Brokerage: |
Royal LePage Benchmark |
| Construction Type: |
Vinyl Siding,Wood Frame
|
| Front Exposure: |
SW
|
|
|
|
|
|
| Exterior: |
|
| Exterior: |
Vinyl Siding, Wood Frame |
| Construction: |
Vinyl Siding,Wood Frame |
| Frontage: |
14.87M 48`9" |
| Front Exposure: |
SW |
| Roof: |
Asphalt Shingle |
|
|
|
|
|
|
|
|
|
|
| Rooms: |
|
| Total Bedrooms: |
4
(Bedrooms Above: 3)
|
| Bathrooms: |
Full: 3
/ Half: 1
|
| Rooms Above: |
7 |
| Ensuite: |
Yes
|
| Parking Plan Type: |
Double Garage Attached
|
| Garage: |
1
|
|
|
|
|
|
| Additional Info: |
|
| Heating: |
Forced Air, Natural Gas |
| Basement: |
Full |
| Basement Type: |
Full |
| Floor Finish: |
Carpet, Linoleum |
| Fireplace Details: |
For Sale |
| Parking: |
Double Garage Attached |
| Total Parking: |
4
|
| Restrictions: |
Contact for Restrictions |
| Heating Type: |
Forced Air,Natural Gas
|
| Heating Fuel: |
Forced Air,Natural Gas
|
| # of Finished Fireplaces: |
1
|
| Restrictions: |
None Known
|
|
|
|
|
|
|
|
|
|
|
|
|
|
|
|
 |
Contact Peter Appleby -
#10, 6020 1A Street SW, Calgary, Alberta, T2H 0G3
|
|
|
|
|
|
|
|
|
|
The data included in this display is deemed to be reliable, but is not guaranteed to be accurate by the Calgary Real Estate Board.
|
|
|
|
|
The data included on this website is deemed to be reliable, but is not guaranteed to be accurate by the Calgary Real Estate Board.
MLS®, Multiple Listing Service®, and the associated logos are all registered certification marks owned by CREA and are used to identify real estate services provided by brokers and salespersons who are members of CREA. The trademarks REALTOR®, REALTORS® and the REALTOR® logo are controlled by The Canadian Real Estate Association (CREA) and identify real estate professionals who are members of CREA. Used under license.
| |