|
|
Descriptions:
Exceptional MU-1 Development Opportunity – DP Approved & Ready to Build!
Prime inner-city CORNER LOT offering MU-1 zoning—allowing for mixed-use development with commercial at grade and up to 6 storeys (5 residential above). Positioned on a high-exposure intersection with strong street visibility, this is a rare opportunity for builders and investors to step into a fully entitled development with no delays, demolition, or uncertainty remaining.
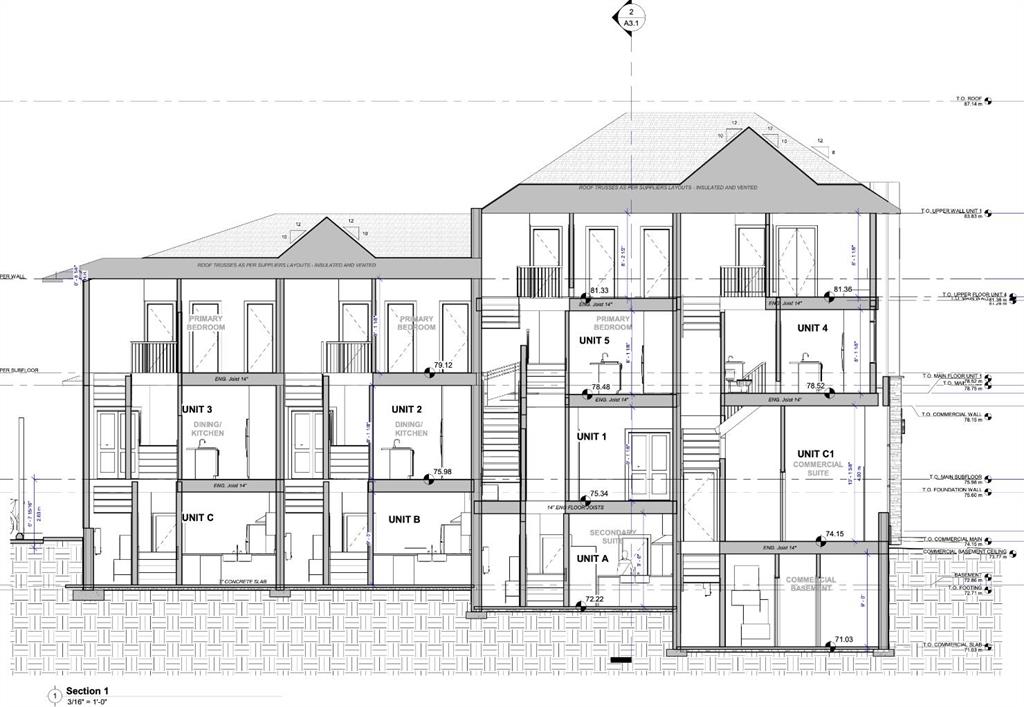
The offering includes a fully approved Development Permit for a thoughtfully designed project featuring a 4-plex with 8 residential units plus 2 commercial spaces, along with a 4-stall carport providing convenient parking solutions. All architectural drawings, DSSP documents, and supporting planning materials are included, significantly reducing soft costs and accelerating the development timeline.
Site preparation is fully complete, including demolition, asbestos remediation, and utility removals—allowing for immediate transition to excavation and construction. This is a true ready-to-build opportunity with substantial value already invested into approvals and pre-development work.
Located in a rapidly evolving inner-city area, the site benefits from strong redevelopment momentum, surrounding investment activity, and long-term growth fundamentals. The MU-1 zoning provides exceptional flexibility for mixed-use design, making this an ideal opportunity for both experienced developers and long-term investors seeking scalable returns.
This offering includes the land, fully approved plans, permits, and all completed pre-construction work—delivering a streamlined, near turn-key development opportunity in a high-demand location. A rare chance to acquire a fully prepared project and bring it to completion.
|
|
| Status: |
|
Active
|
|
| Includes: |
|
NONE |
|
|
|
|
|
|
| Legal Description: |
| ACCESS Legal Description |
|
| Location & Listing Info: |
|
|
| Neighbourhood: |
Highland Park
|
|
| Lot Size: |
0.13
sq.ft.
|
|
|
|
|
|
| Property Info: |
|
| Property Type: |
Residential Land |
| Brokerage: |
Jessica Chan Real Estate & Management Inc. |
|
|
|
|
|
|
|
|
|
|
|
|
|
|
|
| Rooms: |
|
| Ensuite: |
No
|
| Garage: |
0
|
|
|
|
|
|
|
|
|
|
|
|
|
|
|
|
|
|
|
|
|
 |
Contact Peter Appleby -
#10, 6020 1A Street SW, Calgary, Alberta, T2H 0G3
|
|
|
|
|
|
|
|
|
|
The data included in this display is deemed to be reliable, but is not guaranteed to be accurate by the Calgary Real Estate Board.
|
|
|
|
|
The data included on this website is deemed to be reliable, but is not guaranteed to be accurate by the Calgary Real Estate Board.
MLS®, Multiple Listing Service®, and the associated logos are all registered certification marks owned by CREA and are used to identify real estate services provided by brokers and salespersons who are members of CREA. The trademarks REALTOR®, REALTORS® and the REALTOR® logo are controlled by The Canadian Real Estate Association (CREA) and identify real estate professionals who are members of CREA. Used under license.
| |