|
|
Descriptions:
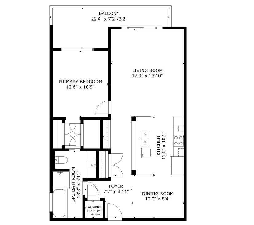
** Open House Saturday, March 28, 1-3 PM ** Framed by sweeping 180 Degree Bow River VIEWS, this elevated, luxury condo at Champagne delivers a lifestyle defined by views, light, and timeless sophistication. Blending architectural elegance and elevated urban living with an unbeatable location, you’ll love all this spacious air conditioned, 1 bedroom suite has to offer – 9 ft ceilings, hardwood and tile flooring, open concept layout offering a lovely dining space, a gorgeous kitchen with stainless steel appliances, granite countertops and an island to seat four. The gracious living room features large windows and patio door leading to the river-facing balcony – perfect to sit back, relax and watch the river go by. The large primary bedroom easily accommodates king-sized furniture and offers more gorgeous views of the Bow River, walk-thru closet to a spa like ensuite with deep soaker tub and stand-alone shower. In-suite laundry completes the floor plan, and the suite includes TWO titled underground parking stalls and title storage locker. Quality & craftsmanship are evident throughout this quiet Concrete building that features lots of visitor parking, bike storage and 2 car wash bays. Pet Friendly Complex, up to Two Pets Allowed per suite. You’ll fall in love with this incredible location on the Bow River Path System and with what Quarry Park has to offer residents - walk to fantastic restaurants, shops, services and amenities & the YMCA. It’s only a five minute drive to the Douglasdale Golf Course, all the shopping at the South Trail Crossing Shopping Centre on 130th Avenue and easy access to major traffic arteries. Be sure to book your viewing today!
|
|
| Status: |
|
Active
|
|
| Includes: |
|
n/a |
|
|
|
|
|
|
| Legal Description: |
| ACCESS Legal Description |
|
| Location & Listing Info: |
|
|
| Neighbourhood: |
Douglasdale/Glen
|
|
| Registered Size Includes: |
Interior Above Grade
|
|
|
|
|
|
| Property Info: |
|
| Property Type: |
Apartment |
| Home Style: |
Apartment-Single Level Unit |
| Year Built: |
2012 |
| Total Floor Area: |
850 sq. ft. |
| Brokerage: |
RE/MAX Realty Professionals |
| End Unit: |
2+ Common Walls
|
| Construction Type: |
Concrete,Stone,Stucco
|
| Front Exposure: |
E
|
| Condo Name: |
Champagne
|
|
|
|
|
|
| Exterior: |
|
| Exterior: |
Concrete, Stone, Stucco |
| Construction: |
Concrete,Stone,Stucco |
| Front Exposure: |
E |
|
|
|
|
|
|
|
|
|
|
| Rooms: |
|
| Total Bedrooms: |
1
(Bedrooms Above: 1)
|
| Bathrooms: |
Full: 1
/ Half: 0
|
| Rooms Above: |
4 |
| Ensuite: |
Yes
|
| Parking Plan Type: |
Guest,Heated Garage,Parkade,Secured,Underground
|
| Garage: |
0
|
|
|
|
|
|
| Additional Info: |
|
| Heating: |
Central |
| Floor Finish: |
Ceramic Tile, Hardwood |
| Fireplace Details: |
For Sale |
| Parking: |
Guest, Heated Garage, Parkade, Secured, Underground |
| Total Parking: |
2
|
| Restrictions: |
Contact for Restrictions |
| Heating Type: |
Central
|
| Heating Fuel: |
Central
|
| Restrictions: |
Restrictions,Yes
|
|
|
|
|
|
|
|
|
|
|
|
|
|
|
|
 |
Contact Peter Appleby -
#10, 6020 1A Street SW, Calgary, Alberta, T2H 0G3
|
|
|
|
|
|
|
|
|
|
The data included in this display is deemed to be reliable, but is not guaranteed to be accurate by the Calgary Real Estate Board.
|
|
|
|
|
The data included on this website is deemed to be reliable, but is not guaranteed to be accurate by the Calgary Real Estate Board.
MLS®, Multiple Listing Service®, and the associated logos are all registered certification marks owned by CREA and are used to identify real estate services provided by brokers and salespersons who are members of CREA. The trademarks REALTOR®, REALTORS® and the REALTOR® logo are controlled by The Canadian Real Estate Association (CREA) and identify real estate professionals who are members of CREA. Used under license.
| | | |