|
|
Descriptions:
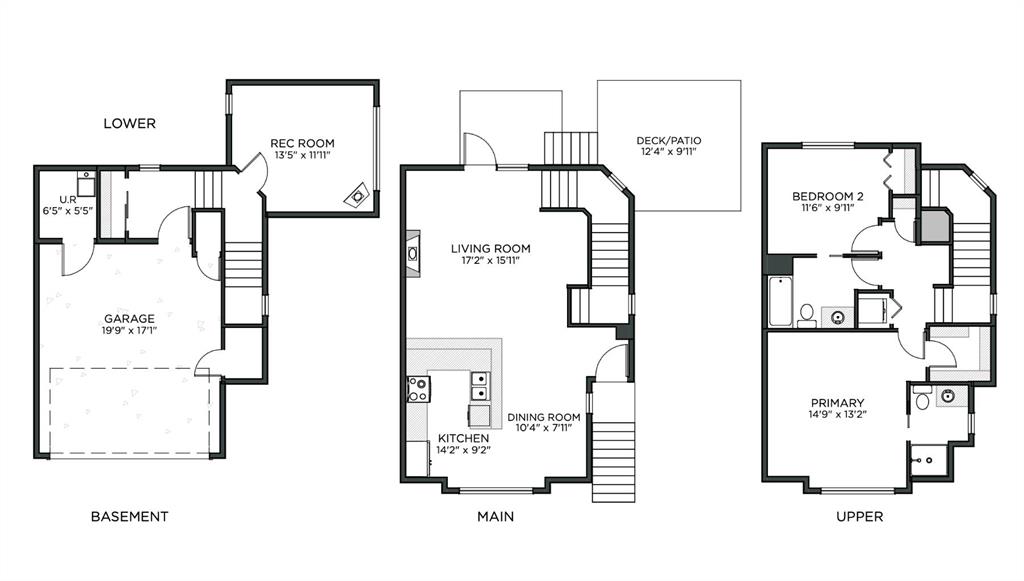
Fantastic end-unit townhome in the heart of Bankview offering a rare double car garage and an incredible rooftop patio! With 1,564 square feet of thoughtfully designed living space, this is an exceptional opportunity to live walking distance to downtown and directly across from a large park and tennis courts. Step inside to a welcoming open-concept main floor featuring 9-foot ceilings and a spacious layout designed for both everyday living and entertaining. The dedicated dining area easily accommodates a large table, while the impressive U-shaped kitchen offers stainless steel appliances, granite countertops, abundant cabinetry, and generous counter space. Enjoy beautiful park views right from your window as the kitchen flows seamlessly into the expansive living room, centred around a cozy gas fireplace with a designated nook for a desk or workspace.
French doors lead to the show-stopping outdoor space — a private patio that wraps around to stairs leading up to the massive rooftop terrace, perfect for entertaining, relaxing, and enjoying the surrounding views. Upstairs you’ll find two well-sized bedrooms, two full bathrooms, and convenient upper-floor laundry. The primary suite is generously sized with large windows overlooking the park, an updated ensuite bathroom, and a walk-in closet.
Between the main level and lower level, you’ll discover a fantastic and unique recreation room exclusive to this unit — ideal for a man cave, movie room, home office, or flex space. Complete with a second gas fireplace and beautiful California shutters, it’s a cozy and versatile retreat. The double attached garage truly feels like an extension of the home, featuring epoxy flooring, space for two vehicles, and two dedicated storage areas.
Additional upgrades include triple-pane windows (2023), a high-efficiency furnace, heat pump, tankless water heater, water softener, humidifier and thermostat (2022), along with updated paint, bathrooms, fixtures and more. Low condo fees of $367 per month and an unbeatable location make this home a standout opportunity. This impressive Bankview townhome truly has it all — space, style, updates, and exceptional outdoor living. Be sure to review the attached feature sheet for a complete list of upgrades and features.
|
|
| Status: |
|
Active
|
|
| Includes: |
|
patio umbrella, shed, wall mounted cabinetry in garage |
|
|
|
|
|
| Site Influences: |
| Corner Lot, Treed |
|
| Legal Description: |
| ACCESS Legal Description |
|
| Location & Listing Info: |
|
|
|
|
| Lot Size: |
0.05
sq.ft.
|
| Lot Shape: |
Corner Lot,Treed |
| Registered Size: |
197.9000
|
| Registered Size Includes: |
Land
|
|
|
|
|
|
| Property Info: |
|
| Property Type: |
Row/Townhouse |
| Home Style: |
3 (or more) Storey |
| Year Built: |
1997 |
| Total Floor Area: |
1,564 sq. ft. |
| Brokerage: |
Sotheby's International Realty Canada |
| End Unit: |
1 Common Wall,End Unit
|
| Construction Type: |
Stucco,Wood Frame
|
| Front Exposure: |
E
|
| Condo Name: |
Z-name Not Listed
|
|
|
|
|
|
| Exterior: |
|
| Exterior: |
Stucco, Wood Frame |
| Construction: |
Stucco,Wood Frame |
| Frontage: |
12.94M 42`6" |
| Front Exposure: |
E |
| Roof: |
Asphalt Shingle |
|
|
|
|
|
|
|
|
|
|
| Rooms: |
|
| Total Bedrooms: |
2
(Bedrooms Above: 2)
|
| Bathrooms: |
Full: 2
/ Half: 0
|
| Rooms Above: |
5 |
| Ensuite: |
Yes
|
| Parking Plan Type: |
Double Garage Attached,Driveway
|
| Garage: |
1
|
|
|
|
|
|
| Additional Info: |
|
| Heating: |
Electric, Forced Air, Heat Pump, Natural Gas |
| Basement: |
None |
| Basement Type: |
None |
| Floor Finish: |
Carpet, Hardwood, Linoleum |
| Fireplace Details: |
For Sale |
| Parking: |
Double Garage Attached, Driveway |
| Total Parking: |
4
|
| Restrictions: |
Contact for Restrictions |
| Heating Type: |
Electric,Forced Air,Heat Pump,Natural Gas
|
| Heating Fuel: |
Electric,Forced Air,Heat Pump,Natural Gas
|
| # of Finished Fireplaces: |
2
|
| Restrictions: |
Yes
|
|
|
|
|
|
|
|
|
|
|
|
|
|
|
|
 |
Contact Peter Appleby -
#10, 6020 1A Street SW, Calgary, Alberta, T2H 0G3
|
|
|
|
|
|
|
|
|
|
The data included in this display is deemed to be reliable, but is not guaranteed to be accurate by the Calgary Real Estate Board.
|
|
|
|
|
The data included on this website is deemed to be reliable, but is not guaranteed to be accurate by the Calgary Real Estate Board.
MLS®, Multiple Listing Service®, and the associated logos are all registered certification marks owned by CREA and are used to identify real estate services provided by brokers and salespersons who are members of CREA. The trademarks REALTOR®, REALTORS® and the REALTOR® logo are controlled by The Canadian Real Estate Association (CREA) and identify real estate professionals who are members of CREA. Used under license.
| | | |