|
|
Descriptions:
This gorgeous three-story duplex on a premier Altadore street offers an expansive floor plan meticulously designed for modern living. This build features two curated color palettes—light and dark. Please refer to photos of the builder's previous builds for a preview of both finish styles. The main level welcomes you with a formal foyer and an elegant dining room that flows into a chef-inspired kitchen featuring a massive quartz island, a walk-in pantry, and a dedicated pocket office—perfect for working from home. Relax in the sun-filled living room anchored by a sleek gas fireplace, which leads into a functional rear mudroom and a conveniently located powder room.
The second level is thoughtfully laid out with three bedrooms and a separate laundry room. This floor includes a spacious secondary master bedroom with its own private ensuite bath and walk-in closet, a second bedroom also featuring a walk-in closet, and a versatile third bedroom.
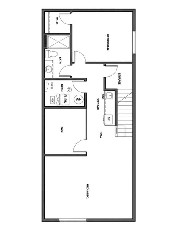
Highlighting the home's unique design, the entire third floor is a private primary retreat, offering ultimate seclusion with a private balcony, a massive walk-in closet with its own center island, and a spa-like ensuite featuring a deep soaker tub, double vanity, and custom shower. The fully developed basement adds even more value with a dedicated home gym, a spacious media room, a stylish wet bar, a fifth bedroom, and ample storage. This stunning property blends luxury and function, situated just steps from the vibrant shops of Marda Loop, top-tier schools, and local parks.
|
|
| Status: |
|
Active
|
|
| Includes: |
|
None |
|
|
|
|
|
| Site Influences: |
| Back Lane, Back Yard, Rectangular Lot |
|
| Legal Description: |
| ACCESS Legal Description |
|
| Location & Listing Info: |
|
|
|
|
| Lot Size: |
0.07
sq.ft.
|
| Lot Shape: |
Back Lane,Back Yard,Rectangular Lot |
|
|
|
|
|
| Property Info: |
|
| Property Type: |
Semi Detached (Half Duplex) |
| Home Style: |
3 (or more) Storey,Attached-Side by Side |
| Year Built: |
2026 |
| Total Floor Area: |
2,807 sq. ft. |
| Brokerage: |
eXp Realty |
| End Unit: |
1 Common Wall
|
| Construction Type: |
Wood Frame
|
| Front Exposure: |
E
|
|
|
|
|
|
| Exterior: |
|
| Exterior: |
Wood Frame |
| Construction: |
Wood Frame |
| Frontage: |
7.62M 25`0" |
| Front Exposure: |
E |
| Roof: |
Asphalt Shingle |
|
|
|
|
|
|
|
|
|
|
| Rooms: |
|
| Total Bedrooms: |
5
(Bedrooms Above: 4)
|
| Bathrooms: |
Full: 4
/ Half: 1
|
| Rooms Above: |
10 |
| Ensuite: |
Yes
|
| Parking Plan Type: |
Double Garage Detached
|
| Garage: |
1
|
|
|
|
|
|
| Additional Info: |
|
| Heating: |
Forced Air |
| Basement: |
Full |
| Basement Type: |
Full |
| Floor Finish: |
Carpet, Hardwood, Tile |
| Fireplace Details: |
For Sale |
| Parking: |
Double Garage Detached |
| Total Parking: |
2
|
| Restrictions: |
Contact for Restrictions |
| Heating Type: |
Forced Air
|
| Heating Fuel: |
Forced Air
|
| # of Finished Fireplaces: |
1
|
| Restrictions: |
None Known
|
|
|
|
|
|
|
|
|
|
|
|
|
|
|
|
 |
Contact Peter Appleby -
#10, 6020 1A Street SW, Calgary, Alberta, T2H 0G3
|
|
|
|
|
|
|
|
|
|
The data included in this display is deemed to be reliable, but is not guaranteed to be accurate by the Calgary Real Estate Board.
|
|
|
|
|
The data included on this website is deemed to be reliable, but is not guaranteed to be accurate by the Calgary Real Estate Board.
MLS®, Multiple Listing Service®, and the associated logos are all registered certification marks owned by CREA and are used to identify real estate services provided by brokers and salespersons who are members of CREA. The trademarks REALTOR®, REALTORS® and the REALTOR® logo are controlled by The Canadian Real Estate Association (CREA) and identify real estate professionals who are members of CREA. Used under license.
| |